Обяви За нас Контакти
Продава ПРОМ. ПОМЕЩЕНИЕ
град София, Обеля 2
бул. Ломско шосе
2 447 900 €
4 787 676.26 лв.

(1 200 €, 2 347.00 лв./m2)
Цената е без ДДС
История на цената
Коригирана в 17:27 на 17 ноември, 2025 год.
Обявата е посетена 1511 пъти.
Площ:
2040 m2
Етаж:
Партер от 1
Газ:
НЕ
ТEЦ:
НЕ
Строителство:
Сглобяема конструкция, Ще бъде въведен в експлоатация 2025 г.

Описание на имота:


🏭 Производствено-складова база за продажба 🏭
📌 Агенция 'Теменуга Недвижими имоти' предлага производствено-складова база с обща застроена площ 2041 м² и прилежащ терен от 4400 м² в район Връбница, до Ломско шосе.

📍 Стратегическа локация:
🚛 Бърз достъп до основни пътни артерии:
✔ Северна скоростна тангента и международен път E81 (София Видин)
✔ Околовръстно шосе на 3 км
✔ Автомагистрала Европа и международен път София Калотина на 5 км
✔ Близост до трансевропейски магистрали VIII и X
✔ ЖП гара Волуяк само на 3 км 🚆

🛣 Пътният възел осигурява връзки между Калотина София Костинброд Монтана и с. Волуяк.

🏗 Характеристики на имота:
🏠 Производствено-складово хале
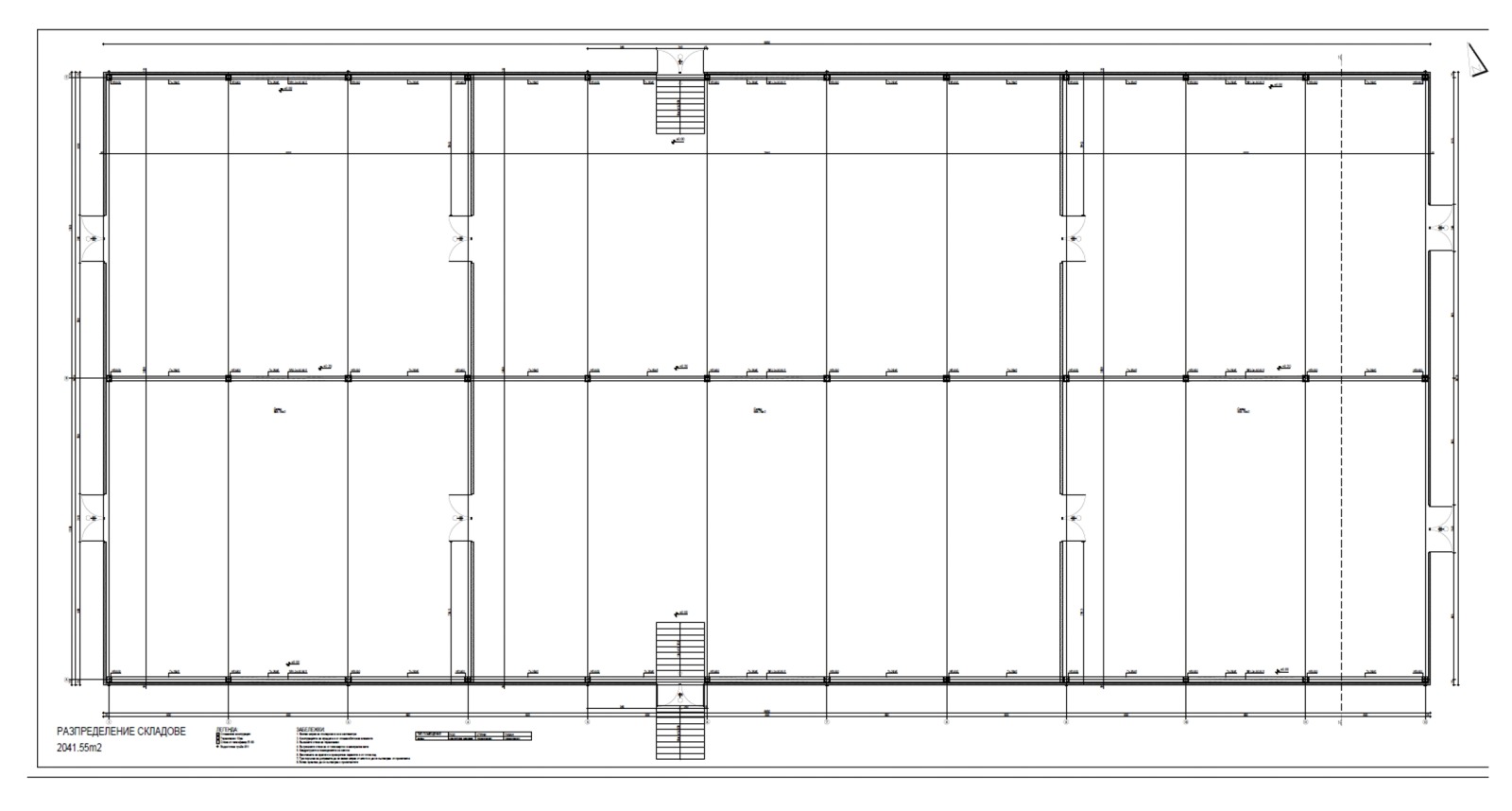
🔹 ЗП: 2041 м²
🔹 Размери: 66,50 м × 30,70 м
🔹 Височина: 5,54 м (най-ниска точка) 7,40 м (най-висока точка)
🔹 Конструкция: Метална конструкция ригели и колони и стоманобетонен фундамент
🔹 Покритие: 10 см термопанел, естествено осветление
🔹 Настилка: Шлайфан бетон, армирана бетонна настилка

🏗 В процес на изграждане и реконструкция възможност за довършителни работи според нуждите на купувача.

📌 Терен:
🔹 Площ: 4400 м²
🔹 Форма: Равен и правоъгълен
🔹 Зона: Пмс (Плътност 55%, Кинт 1,5)

⚡ Комуникации и инфраструктура:
🔌 Електрозахранване
✔ Трафопост 150 kW (възможност за разширение до 2 × 500 kW)
✔ Възможност за изграждане на подстанция далекопровод 110 kV на 100 м от имота

💧 Водоснабдяване
✔ Градски водопровод
✔ Собствен водоизточник

🛣 Инфраструктура
✔ Път с трайна настилка
✔ ТИР достъп

🏢 Подходящо за:
🏭 Производствени дейности (чисто производство)
📦 Складова база
🏬 Търговски център
🚛 Логистична база
🔧 ТИР сервиз
Промишлени дейности

📆 Срок на завършване: Край на 2025 г.
💰 Обявената цена е без включен ДДС.
Агенция Теменуга предлага и други производствени бази в района:

- Действащо модерно предприятие за метални изделия със ЗП 2900м2 и прилежащ терен 5900м2 с отличен транпортен достъп и изградена инфраструктура- 3200000Е без ДДС
- Нова Производствено складова база 4080м2 с прилежащ терен 9500м2- 4980000Е без ДДС
📞 За повече информация и индивидуална оферта, свържете се с нас!0888916439
Особености
Сглобяема конструкция
С паркинг
Контрол на достъпа
За контакт:
0888916439
Брокер:
Явор Стайков
0888916439
Още оферти от брокера: Продава | Дава под наем | Купува | Наема
Агенция:
АГЕНЦИЯ 'ТЕМЕНУГА' НЕДВИЖИМИ ИМОТИ
02/9803599,0888916439
АГЕНЦИЯ 'ТЕМЕНУГА' НЕДВИЖИМИ ИМОТИ logo
Медал за прослужено време
В imot.bg от 2002 г.
temenuga.imot.bg
Адрес:
област София, гр. София, ул. Гурко 74 вх 1 ап6
http://www.bulrealty.net
ИЗПРАТИ ЗАПИТВАНЕ
ИЗПРАТИ ЗАПИТВАНЕТО

Продава ПРОМ. ПОМЕЩЕНИЕ
град София, Обеля 2
бул. Ломско шосе
Обява: 1p174833764685538

2 447 900 €
4 787 676.26 лв.
История на цената
(1 200 €, 2 347.00 лв./m2)

Цената е без ДДС
ЗАПАЗИ ОБЯВАТА

Местоположение: град София, Обеля 2, бул. Ломско шосе

Допълнителни данни за имотите в района и сравнение с други райони

Покажи

Период

* Средните цени са определени чрез медианна стойност